Se rendre au contenu

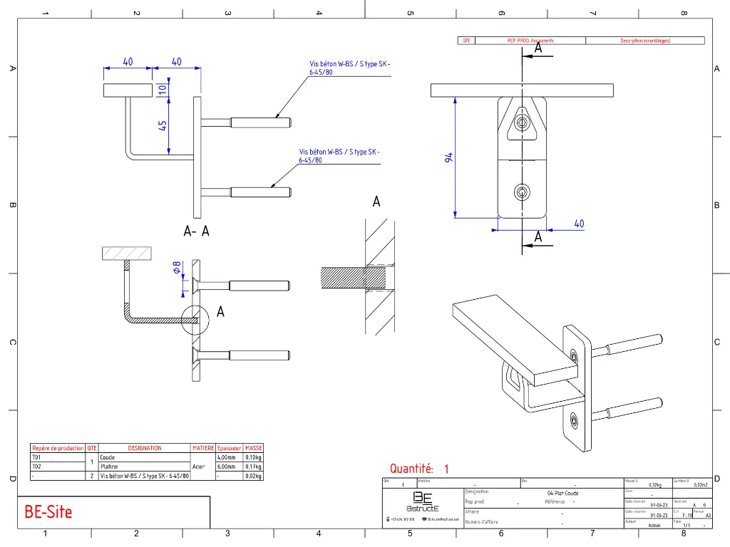
Support main-courante (01)

Ce support de main courante mural est conçu pour la fixation fiable et durable de mains courantes métalliques ou bois, en intérieur comme en extérieur.

Sa conception repose sur une pièce pliée et soudée, volontairement simple, robuste et adaptée à une fabrication rationnelle en atelier ou à un projet DIY métal sérieux.

Le design privilégie la fonction, la lisibilité des efforts et une intégration discrète dans l’architecture.

Conception étudiée

Le support a été conçu avec une logique structurelle et d’usage réel :

  • Support en acier plié, assurant rigidité et tenue mécanique

  • Platine murale épaisse, garantissant une bonne reprise des efforts

  • Coude soudé, assurant le maintien précis de la main courante

  • Géométrie étudiée pour :

    • efforts verticaux (appui)

    • efforts horizontaux (traction / poussée)

  • Conception adaptée aux circulations, escaliers et rampes

  • Fabrication optimisée pour :

    • découpe laser

    • pliage

    • soudure simple

    • finition atelier

Dimensions principales (selon plan fourni)

  • Platine murale : 40 × 94 mm

  • Déport du support : ≈ 45 mm

  • Épaisseur acier (coude) : 4 mm

  • Épaisseur acier (platine) : 6 mm

Les dimensions détaillées sont entièrement reprises dans les plans PDF.

Matière & finition

  • Matière : acier

  • Masse unitaire : ≈ 0,32 kg

  • Finitions possibles :

    • acier brut

    • peinture / thermolaquage

    • galvanisation

    • finition métallisée (ex. RAL 9001)

Fabrication & usage

Ce modèle est destiné :

  • aux ateliers métal / ferronneries,

  • aux installateurs,

  • aux projets DIY métal avancés,

  • aux escaliers, circulations intérieures et extérieures.

La fabrication nécessite :

  • découpe

  • pliage précis

  • soudure acier

  • perçage

  • fixation adaptée au support (béton, maçonnerie, etc.)

Types de fichiers fournis

Le pack numérique comprend :

  • Plans PDF

    • vues générales

    • coupes et détails

    • cotations complètes

    • repérage des pièces

    • indications de fixation

  • Fichiers DXF

    • pièces prêtes pour découpe laser

    • épaisseurs respectées

  • Fichier STEP

    • modèle 3D pour intégration, adaptation ou vérification

      (inclus selon la version proposée sur la fiche produit)

Avantages du format numérique

  • Téléchargement immédiat

  • Compatible fabrication atelier ou DIY métal

  • Gain de temps sur la conception

  • Base fiable pour adaptation dimensionnelle ou esthétique

  • Aucun produit physique à expédier

Licence & responsabilités

Les fichiers sont fournis avec une licence d’utilisation standard.

Le fabricant et/ou installateur final reste entièrement responsable :

  • de la fabrication,

  • des soudures et assemblages,

  • du choix des fixations selon le support,

  • du respect des normes locales en vigueur,

  • de la sécurité et de la conformité de l’installation finale.

Les fichiers constituent une base technique de conception. Leur mise en œuvre relève de l’expertise du fabricant.

Résumé

  • Support mural de main courante

  • Acier plié et soudé

  • Conception simple et robuste

  • Fabrication atelier ou DIY métal

  • Fichiers PDF + DXF (+ STEP)

Soudure Pliage Laser Dxf Files Step files
4,50 € 4,50 €

Dimensions globales